Desain Sistem Multimedia Presentasi pada Ruang Audio Video Kolese Kanisius Jakarta oleh VOKUZ
Tentang Pembangunan Ruang Audio Video
Kolese Kanisius merupakan salah satu sekolah katolik khusus laki-laki yang berdiri sejak tahun 1927. Dalam menunjang kebutuhan pendidikan yang terus berkembang, Kolese Kanisius meremajakan ruang audio video atau ruang multi-media dengan mengadopsi teknologi terkini. Ruang audio video ini akan difungsikanuntuk system edukasi berbasis multimedia. Adapun system edukasi berbasis multi-media dapat berupa seminar oleh keynote speaker, belajar jarak jauh dengan video conference atau webinar, dan juga untuk menonton film documenter atau hiburan dengan tata suara dolby surround.
Oleh karena itu Kolese Kanisius mempercayakan VOKUZ untuk mendesain dan menginstalasi sistem audio video pada ruang audio video tersebut.

Fase Desain Audio Video
Sasaran dari desain audio video integrasi ini salah satunya yaitu agar suara audio system yang dikeluarkan dapat terdengar jelas di setiap sudut ruangan dan juga dapat terdengar jelas bila tanpa menggunakan pengeras suara yang ada. Dari fungsi dan sasaran tersebut VOKUZ tertantang untuk dapat mendesain ruang audio video Kolese Kanisius ini.
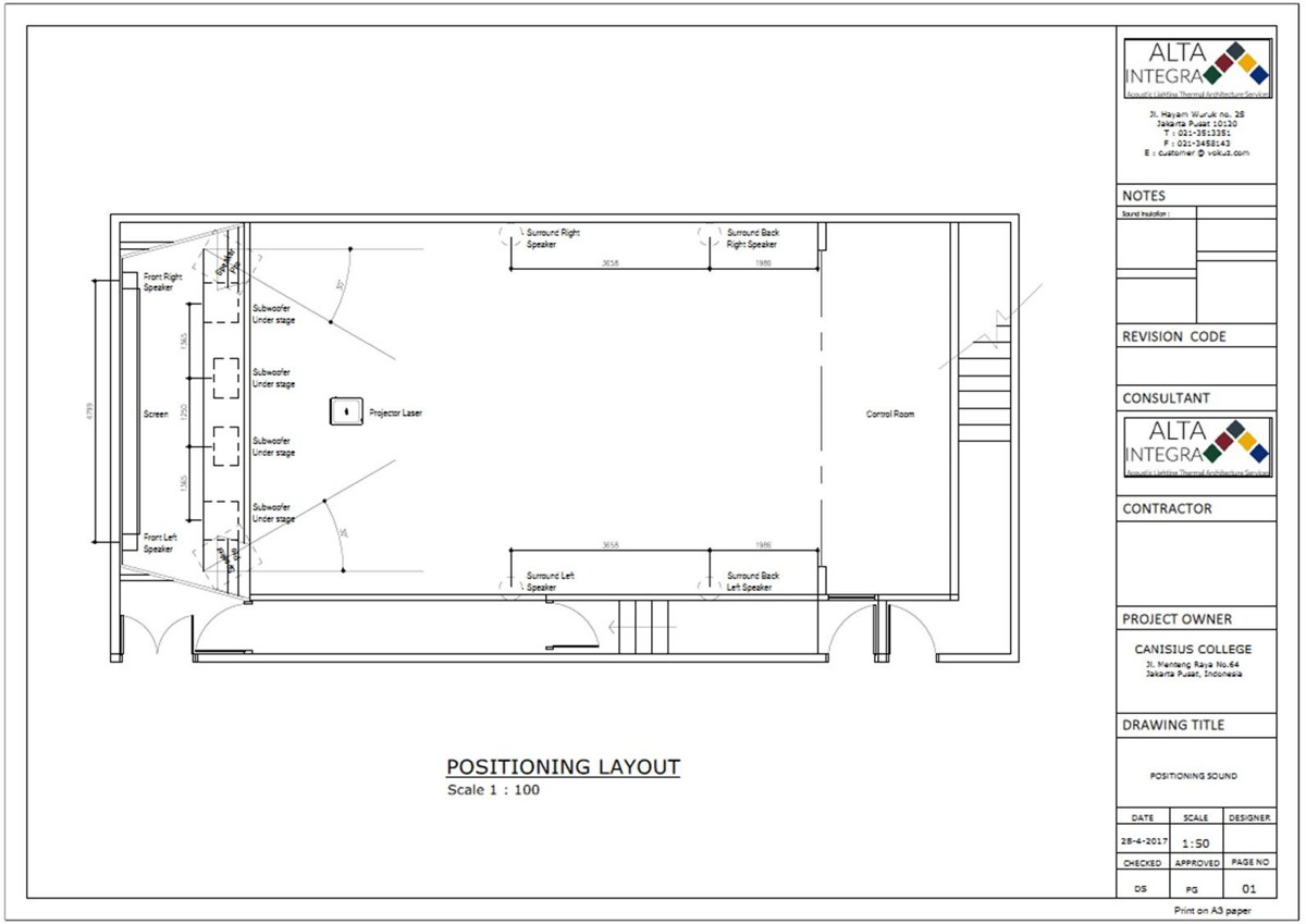
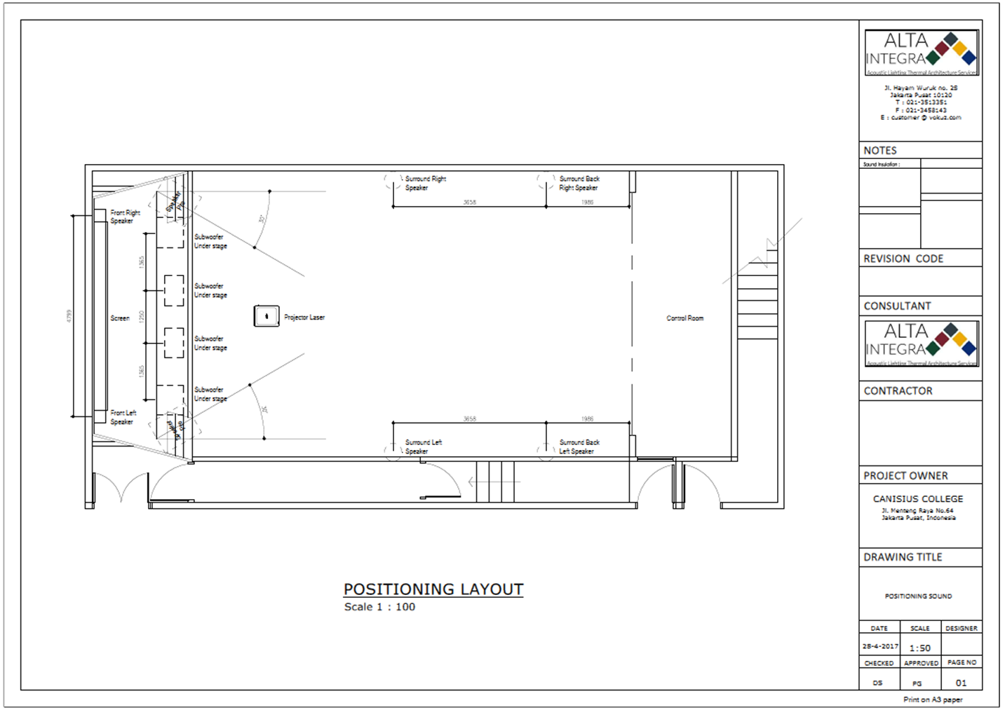
Berdasarkan konsep desain yang dibuat oleh VOKUZ, proses berikutnya yaitu membuat detail desain agar mempermudah dalam pengerjaan. Berikut adalah detail desain posisi sistem integrasi audio video pada ruang audio video Kolese Kanisius:
Dari konsep sistem multimedia presentasi yang sudah disepakati, VOKUZ memasang 2 speaker pada stage yang dapat digunakan sebagai multi-media presentasi. Kemudian agar bisa digunakan untuk mini cinema pada ruang audio video ini VOKUZ merancang sistem home theater AVR. Sedangkan pada sistem visualnya terdapat dua sistem yaitu projector dan screen serta clear glass white board.
Diagram sistem integrasi audio video rancangan VOKUZ pada ruang audio video Kolese Kanisius
Fase Testing & Commisioning Audio Video
Setelah sistem multimedia presentasi terpasang, perlu dilakukan Testing and Commisioning yang bertujuan untuk memastikan pekerjaan terbangun dan hasilnya sesuai dengan perencanaan atau simulasi.
Sistem multimedia presentasi yang telah terpasang pada ruangan tersebut oleh VOKUZ diharapkan dapat meningkatkan kualitas penyampaian materi maupun informasi sehingga mampu meningkatkan kualitas kegiatan pendidikan yang dilakukan pada ruangan ini.




